Magnifique appartement de 4.5 pièces au dernier étage

JRB Immobilier, agence immobilière à Bulle, dans le canton de Fribourg

Description

Référence 597
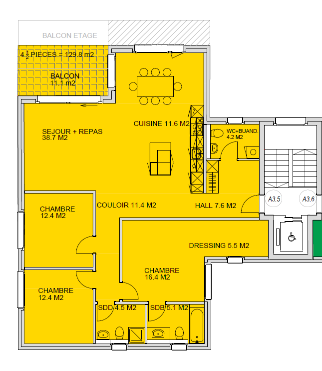
Surfaces Env. 129.8m2
Pièces 4.5 pièces
Nb de chambres 3
Nb de salle de bain 3
Année de construction 2024
Vue Vue dégagée
Etat Neuf
Places de parc Une place de parc extérieur couverte + une place de parc extérieur
Découvrez ce superbe appartement neuf au deuxième étage de 4,5 pièces situé dans le charmant village d’Arconciel. Construit en 2024, cet appartement moderne offre un espace de vie confortable de 129.8m² dans un immeuble de deux étages.

Des photos avec aménagement intérieur sont disponibles pour vous aider à vous projeter dans ce logement neuf.

Caractéristiques principales :

  • Superficie totale de 135.4 m²
  • 2 chambres enfants
  • 1 chambre parentale avec un coin dressing et salle de bain baignoire-WC
  • 1 salle de bain douche-WC
  • 1 WC visiteur et une colonne de lavage
  • Cuisine ouverte avec un grand îlot central
  • Grand séjour lumineux
  • Un balcon de 11.1 m², offrant une vue agréable sur le Jura
  • Ascenseur
  • Place de parc couverte (en sus du prix de vente CHF 25’000.-)
  • Place de parc extérieure (en sus du prix de vente CHF 10’000.-)
  • Cave
  • Local vélo

L’appartement bénéficie d’une conception soignée avec des finitions de qualité. Le salon spacieux s’ouvre sur une terrasse couverte, idéal pour profiter de l’extérieur. La cuisine moderne est équipée et d’un îlot central pratique.

Les chambres sont lumineuses et disposent de parquet, offrant un espace confortable. Les salles de bains sont élégantes avec des carrelages gris et des équipements contemporains.

Environnement :

  • Quartier calme et ensoleillé, en bordure de forêt
  • Proche des transports en commun (arrêt de bus à 6 minutes à pied)
  • École à proximité (6 minutes à pied)
  • Accès facile aux espaces verts

Cet appartement neuf, disponible à partir de septembre 2025, est parfait pour les familles ou les personnes recherchant un cadre de vie paisible tout en restant proche des commodités. Ne manquez pas cette opportunité de vivre dans un logement moderne et confortable à Arconciel.

JRB Immobilier Sàrl

Rue de Gruyères 67

1630 Bulle

079 287 66 14

info@jrb-immobilier.ch

 

Prix

CHF 895'000.-

Localisation

Agence immobilière à Bulle, Fribourg, spécialisée dans l'achat, la vente et la location de biens. Votre partenaire de confiance pour réaliser vos projets immobiliers.

Vous êtes intéressé(e) ?

Merci de remplir ce formulaire ; nous vous recontactons.

« * » indique les champs nécessaires

Ce champ n’est utilisé qu’à des fins de validation et devrait rester inchangé.

Ce formulaire est sécurisé et les données sont conservées de manière confidentielle.

Vous pouvez aussi nous contacter

Pour partager ce dossier

Facebook
E-mail
WhatsApp